Si has pedido una lona o bandera con accesorios (ojales, cordones o tensores) o con acabados específicos (refuerzo perimetral o vainas), es muy importante colocar los textos y gráficas relevantes únicamente dentro del área segura, para que no queden cortados ni demasiado cerca del borde, evitando así resultados estéticos no deseados.
ÁREA SEGURA: ¿Dónde la encuentro?
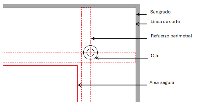
Si has descargado nuestra plantilla, encontrarás dentro algunas líneas de colores diferentes que te ayudarán a posicionar correctamente tu gráfica. Entre estas líneas, hay una línea roja continua llamada área segura. Las otras líneas indican la posición de los accesorios, refuerzos o vainas perimetrales, así como la línea de corte y el límite del sangrado.
Si usaste el Diseñador en línea, la línea que define el área segura será de color verde:
ÁREA SEGURA: Para qué sirve
Durante la fase de corte del producto impreso, es normal que puedan producirse desviaciones de 1 a 2 mm. Por ello, es importante colocar los textos e imágenes relevantes dentro del área segura, para evitar que sean cortados o queden demasiado cerca del borde, lo que podría afectar negativamente el resultado estético.
Presta especial atención a ubicar los elementos importantes dentro del área segura, especialmente si tu producto incluye accesorios o acabados específicos, ya que estos requieren porciones extra de material que serán dobladas y no quedarán visibles.
Archivo y resultado de impresión correspondiente con texto dentro del área segura:
Archivo y resultado de impresión correspondiente con texto fuera del área segura:
Coloca siempre los textos e imágenes relevantes dentro del área segura para asegurarte de obtener un buen resultado.
Si aún tienes dudas, no dudes en contactarnos: ¡estaremos encantados de ayudarte!
Comentarios
0 comentarios
Inicie sesión para dejar un comentario.